伊豆高原
戸建て
エンゼルフォレスト赤沢望洋台
取扱店舗:伊東店
0557-38-5555
問合せ番号:82111
-
-
価格
-
1,480万円
-
-
-
間取り
-
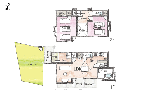
2LDK
-
-
-
土地面積
-
191m² (57.77坪)
-
-
-
建物面積
-
87.12m² (26.35坪)
-
-
-
築年数
-
築37年
-
-
-
管理費等
-
5,005円
-
-
リフォーム内容
-
2020年10月 クロス張り替え等
-
戸別
-
海の眺望
-
テニス
-
投資
アイコンの意味
-
温泉
:温泉大浴場
-
戸別
:戸別温泉
-
大浴場
:大浴場
-
温水
:屋内温水プール
-
屋外
:屋外プール
-
海の眺望
:海の眺望
-
山の眺望
:山の眺望
-
テニス
:テニスコート
-
投資
:投資向き
-
オーナー
:オーナーチェンジ
お問合せ
エンゼル不動産 伊東店
TEL:0557-38-5555 / 営業時間:9:00~18:00 / 定休日:毎週水曜日
問合せ番号:82111
-
室内基本情報
設備概要
電気 / 東京電力、ガス / 個別プロパンガス、水道 / 市営水道、排水 / 戸別浄化槽
-
管理費・修繕積立金等
管理費
5,005円(月額)
-
税金関連情報
固定資産税(令和6年度)
約38,100円
登録免許税
約46,100円
不動産取得税
約65,000円
-
取引関連情報
取引形態
代理
仲介手数料
不要
現況
リゾート
引渡時期
相談
備品・家具
含まない
-
エンゼルフォレスト赤沢望洋台の概要
※施設の利用料金・利用時間・運営状況等、掲載内容はすべて現況を優先とします
所在地
静岡県伊東市赤沢
交通機関
伊豆急行「伊豆大川駅」約4.8km 車で約15分
竣工 / 築年
1989年(平成元年)10月 / 築37年
構造
木造スレート葺2階建
権利の種類
所有権
管理会社
株式会社エンゼルフォレストリゾート
駐車場
カースペースあり(2台分)
地目
山林
地勢
傾斜地
道路
北
私道負担
無し
建ぺい率/容積率
60%/200%
高さ制限
制限なし
都市計画
都市計画区域内-非線引き区域
その他制限
別荘地内自主規制あり 宅地造成等規制法
内装リフォーム
リフォーム済み
備考
[管理費]60,060円/年(個人)・180,180円/年(法人) ■送迎バスあり 月(9:35/14:35)・土(9:30/14:00) 管理事務所発
特記事項
[管理費]年払制 [区画名義変更料]9,900円/1区画 [温泉]温泉引き込み済・更新料あり ◆温泉受湯権名義変更料(譲渡等)55,000円 ◆月々使用料:5立方メートルまで→6,380円・6立方メートルより超過料あり ◆貸別荘運営中は、借主である株式会社エンゼルが温泉使用料を負担。 ※温泉更新料330,000円(温泉供給契約期間:10年)
※間取り・写真・物件情報等、掲載内容はすべて現況を優先とします。
※物件の内覧をご希望の際は、事前に内覧のご予約をお願いします。
最終更新日:2026年5月30日
次回更新予定日:2026年6月6日
売却・賃貸査定のご相談
-
-

-
株式会社エンゼル不動産は、リゾート不動産の総合企業として、オーナー様の所有するリゾート物件の売却・貸し出しサポート業務を提供しております。
-
伊東・東伊豆・下田・西伊豆エリアの売主物件
売主物件をおすすめする4つの理由
-
仲介手数料が不要です。
-
住戸内がクリーニング済みです。
-
必要に応じてリフォームを行っています。
-
すぐに住み始める事が出来ます。
-
【伊豆高原】
エンゼルフォレスト赤沢望洋台
屋根から内装までフルリフォームを行いました。海眺望もあり、駐車場完備。是非ご内見ください。 条件によっては貸別荘の運用も可能です。詳細は担当者へご連絡ください。 ※画像内の家具はバーチャルで作成したイメージのものとなり、価格に含まれておりません。






営業担当のコメント
温泉権利有り残存期間はお問合せ下さいませ。 「10年間定額家賃システム(表面利回り7.5%)」年間想定賃料約111万 ※「表面利回り」は、1年間の予定賃料収入の物件取得価格に対する割合です。 公租公課・管理費その他物件を維持するために必要な諸費用は控除されていません。 また、利回りや予定賃料収入が確実に得られることを保証するものではありません。 【計算式】表面利回り=年間予定賃料収入÷物件購入価格×100